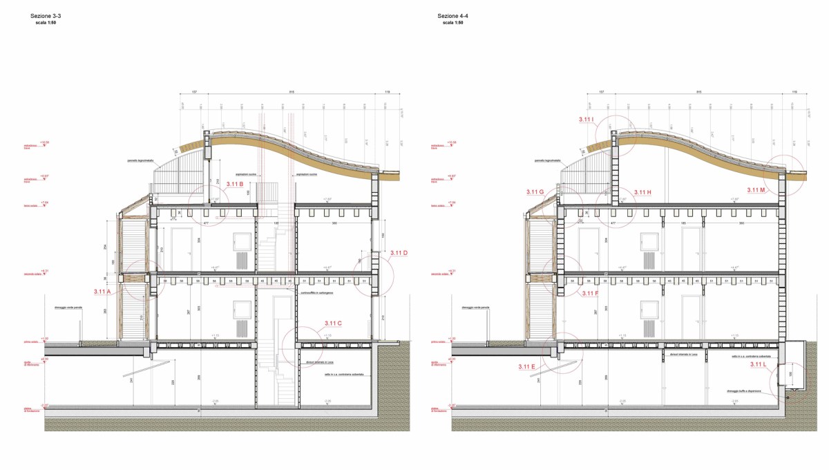
TAV 3.11 Edificio A- Sez trasversali Published April 4, 2014 at 1800 × 1021 in Housing | Detached house ← Previous Next →