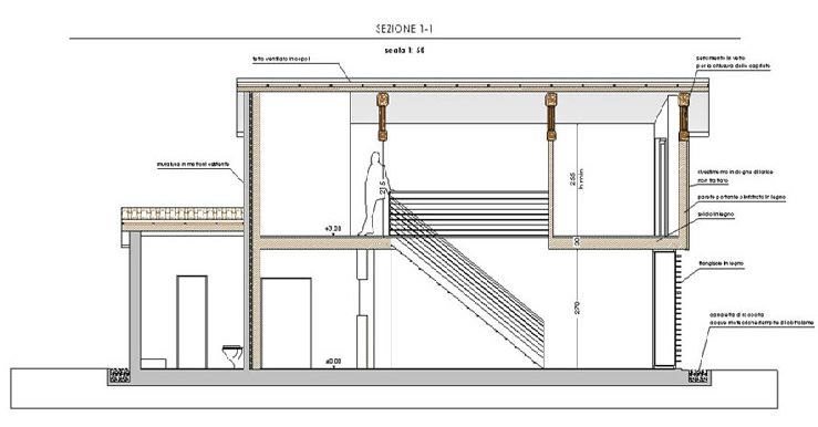
faenza06 Published December 19, 2013 at 739 × 386 in Housing | Farmhouse requalification ← Previous Next →