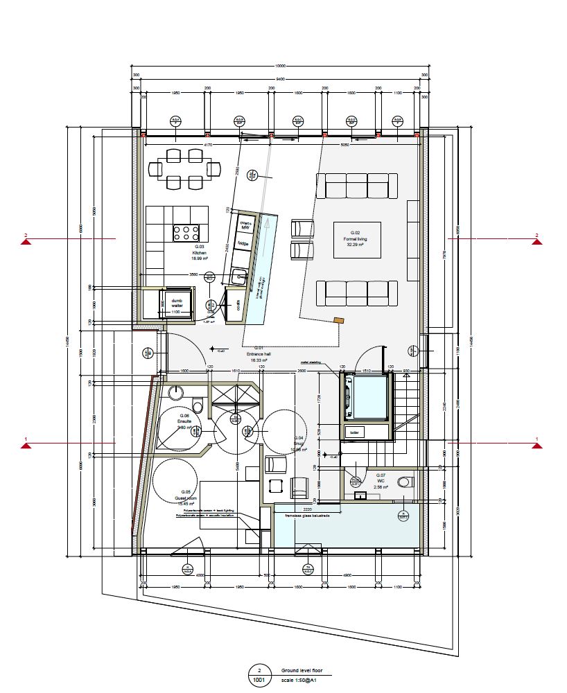
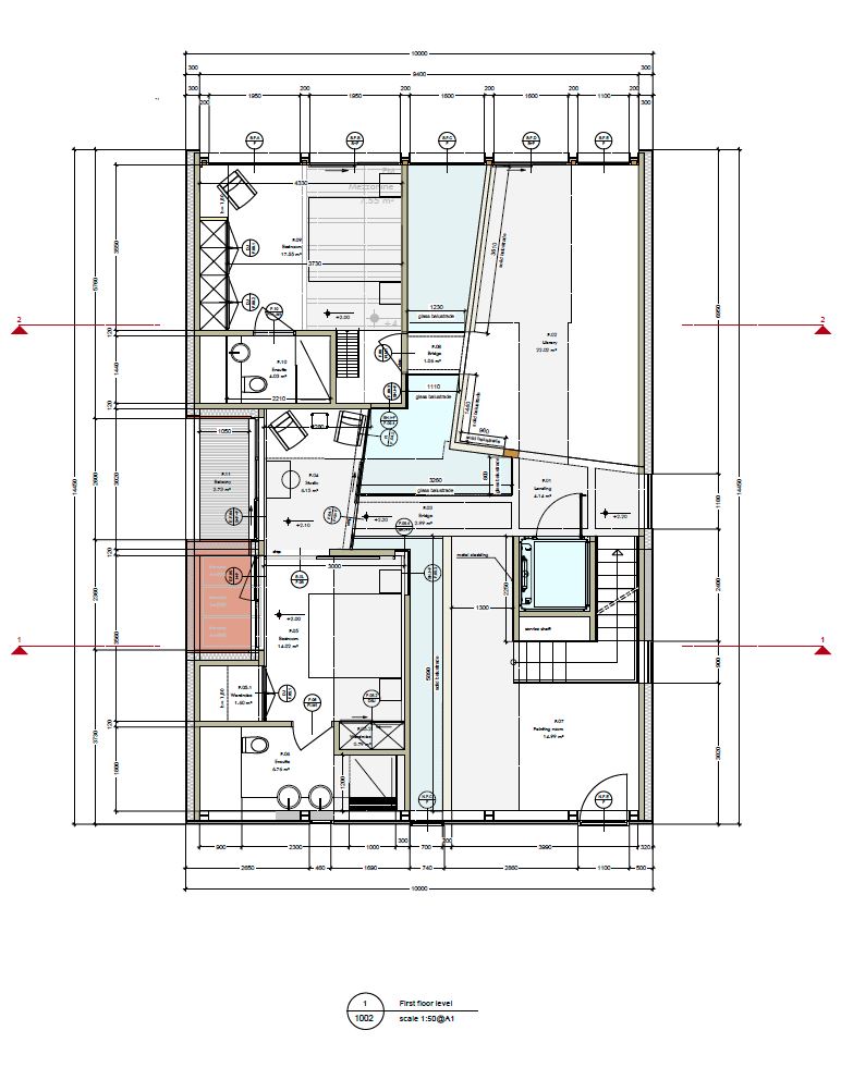
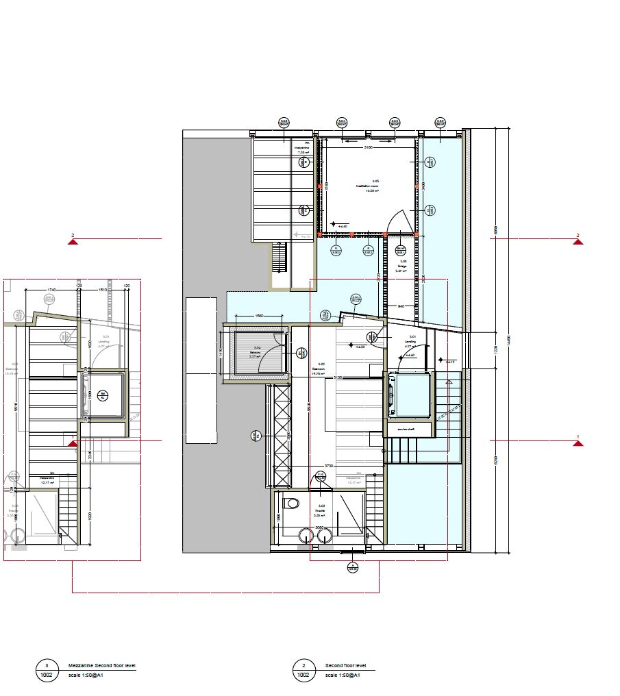
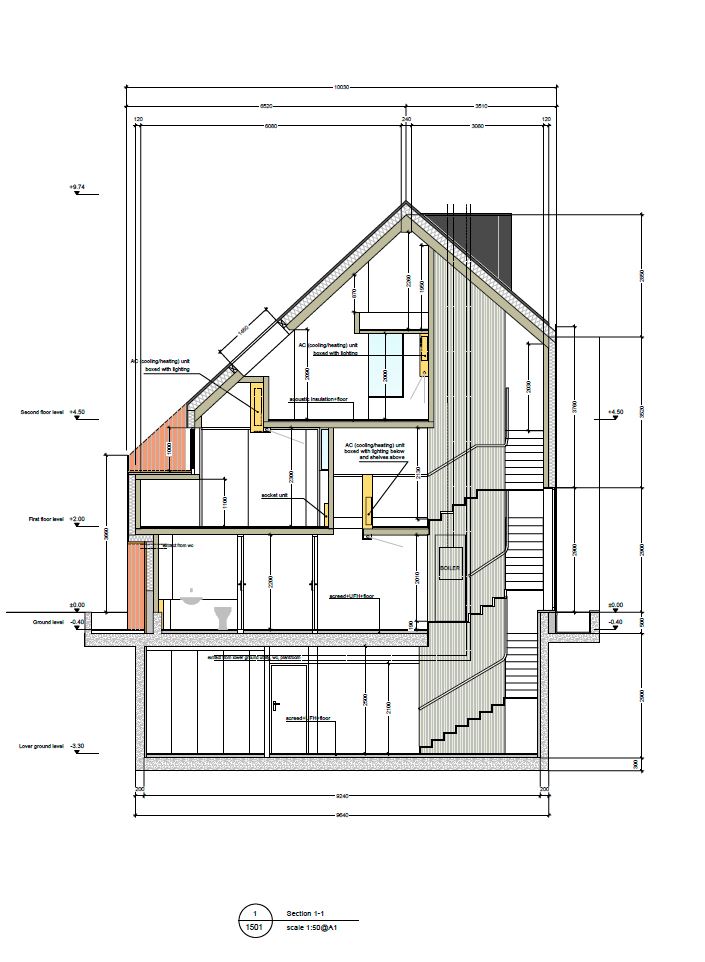
2016-2017 | Private residential | Family house | CLT construction
• Increase NIA of 15% keeping same shape, footprint and mass of a previously approved scheme
• Analyzed project feasibility and costs by developing a BIM model of the project at early stage
• Coordinated structural information with a Cross Laminated Timber company (KLH) sharing BIM models
• Optimised the project decreasing the structural cost (timber structure) of about 10%
• Developed the layout already complying with Building Regulation from the concept onward
• Discharged pre-commencement conditions of the previously approved scheme (includind hard and soft landscape)
• Obtained approval for minor amendments (under Section 73) without pre-commencement conditions





















































