Lead Architect at Hampson and Williams, 2014-2017. High-End Residential project, Conservation Area, 1000+ sqm, 5 Storeys (2 underground), internal swimming pool, Client KHN Design, Construction cost 8M+
• Obtained planning approvals and discharge of condition whithin conservation area
• Devised overall strategy for documentation and identified deliverables planned from
stage 3 to stage 5
• Coordinated a multi-disciplinary team throughout development and construction phases
• Coordinated development on site with main contractor and subcontractors
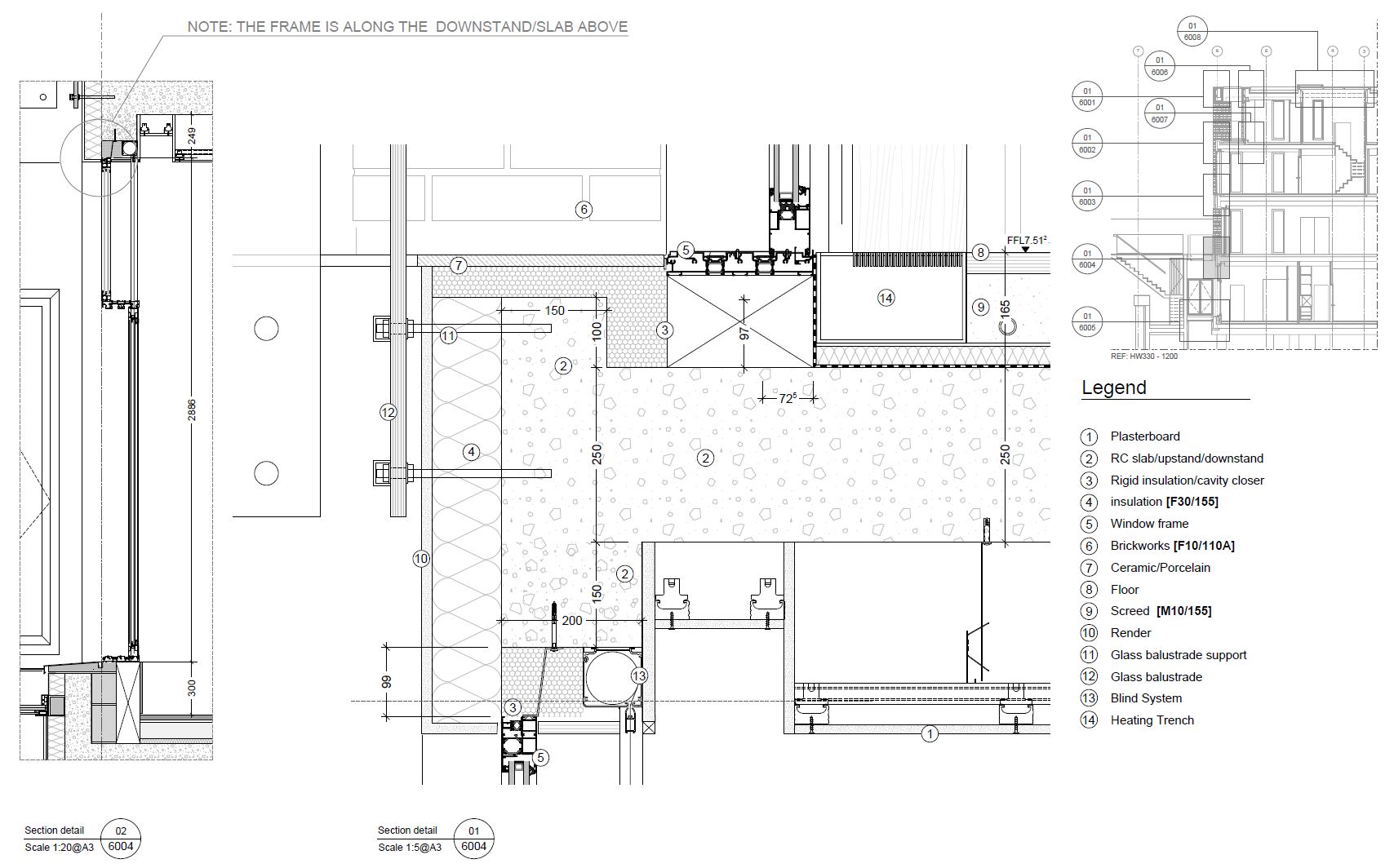
• Developed a full BIM model to coordinate construction information at every stage
• Completed comprehensive code compliance evaluations
• Supervised preparation of technical drawings by architectural assistants
• Discussed planning issues and building codes with Local Authorities
• Developed concept and construction details for specific items (staircase, courtyard,
external doors and windows)























































