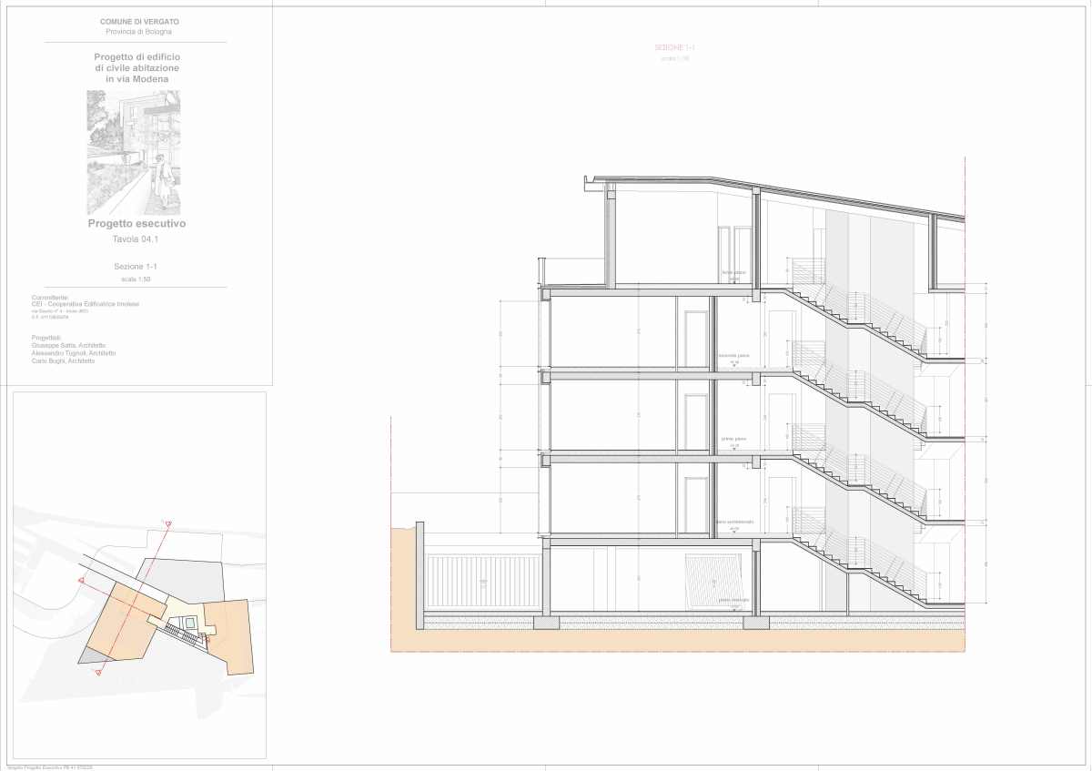
TAV 04.1 Sezione 1-1 Published April 4, 2014 at 7020 × 4958 in Housing | Multistorey ← Previous Next →