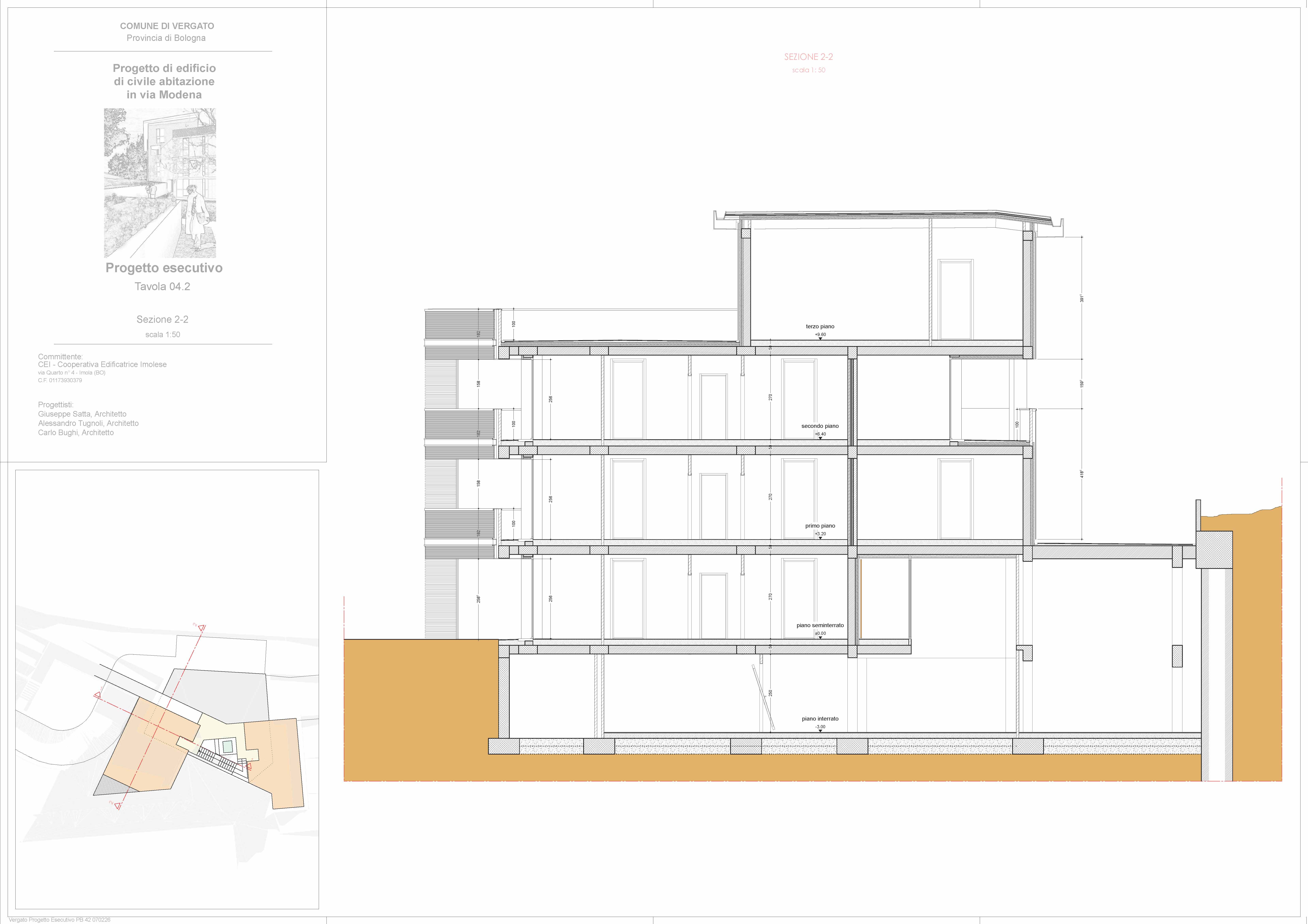
TAV 04.2 Sezione 2-2 Published April 4, 2014 at 6623 × 4678 in Housing | Multistorey ← Previous Next →