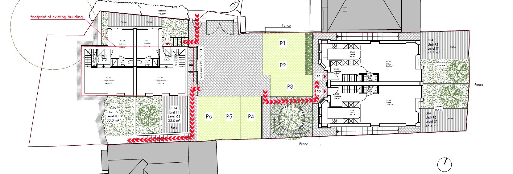
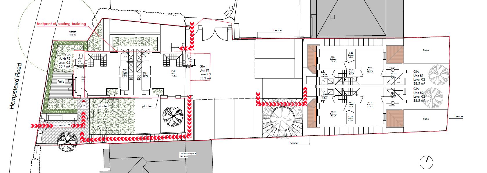
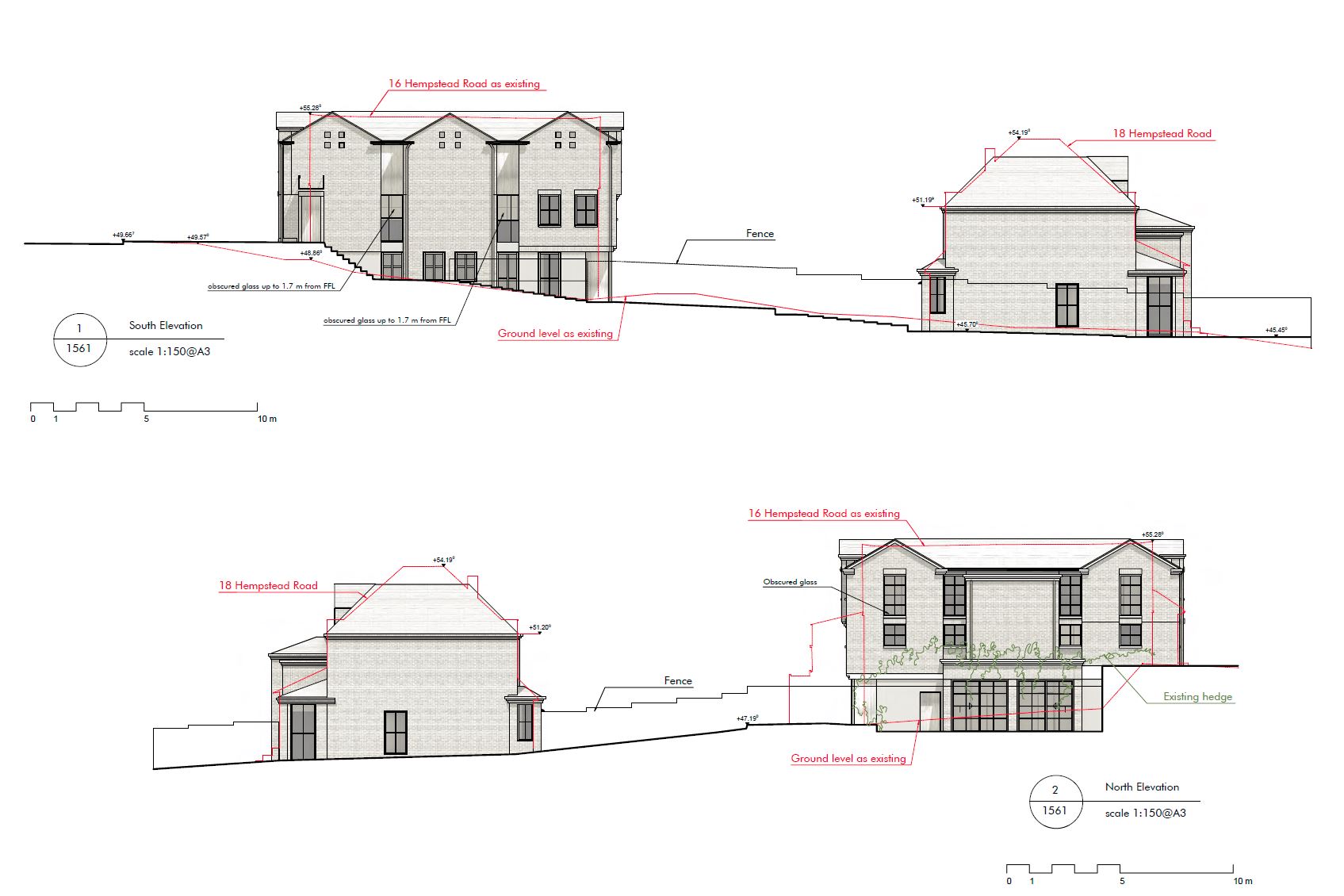
Kings Langley | Residential development staff / January 27, 2021 2018 | Feasibility study | Preliminary design + Planning | 4 semidetached houses Share this: Share on X (Opens in new window) X Share on Facebook (Opens in new window) Facebook Like Loading...