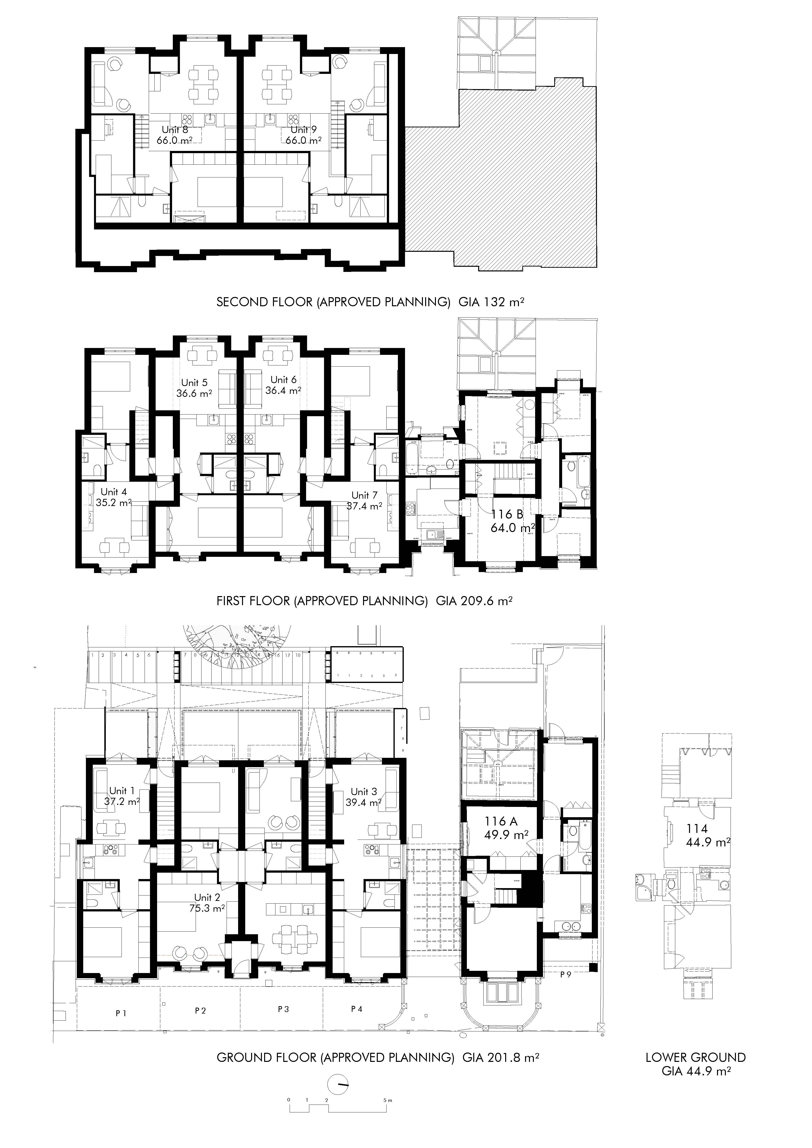
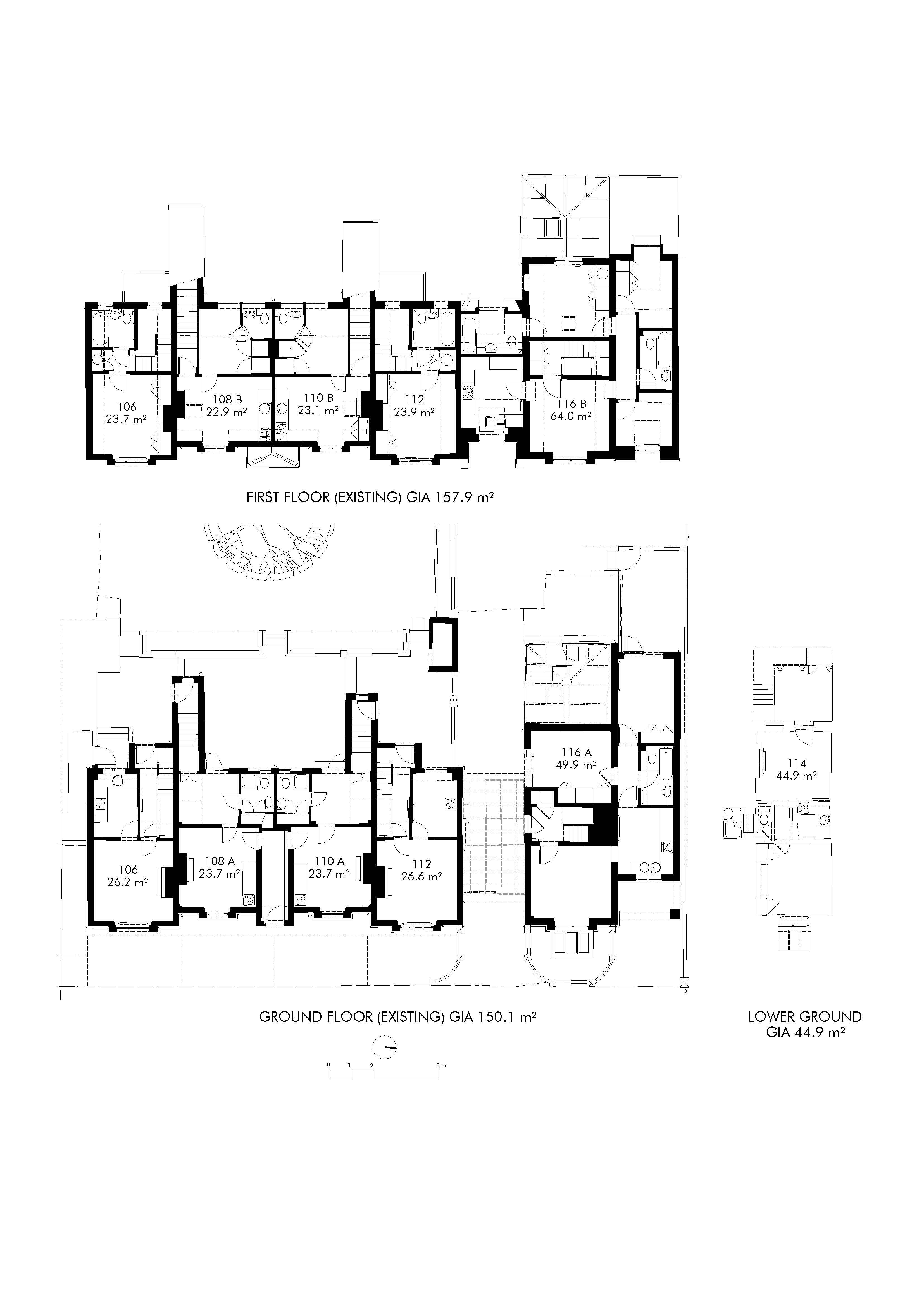
Westfield Road | Residential development staff / January 27, 2021 2018-2020 | Refurbishment + extension | Concept + Planning + Detailed Design Share this: Share on X (Opens in new window) X Share on Facebook (Opens in new window) Facebook Like Loading...